Technische bibliotheek

Tekening/ Constructiedetail

Hoekaansluiting buitenwand

.DWG (79.42 kB)
bouwdetail in .dwg
Tekening/ Constructiedetail

Fundering met buitenwand (langsgevel)

.DWG (91.02 kB)
bouwdetail in .dwg
Tekening/ Constructiedetail

Buitenwand met woningscheidende wand

.DWG (79.54 kB)
bouwdetail in .dwg
Tekening/ Constructiedetail

Buitenwand met raamopening (zijaansluiting langsgevel)

.DWG (117.27 kB)
bouwdetail
Tekening/ Constructiedetail

Buitenwand met raamopening (onderaansluiting langsgevel)

.DWG (121.05 kB)
bouwdetail in .dwg
Tekening/ Constructiedetail

Buitenwand met raam en verdiepsingsvloer (bovenaan langsgevel)

.DWG (144.43 kB)
bouwdetail in .dwg
Tekening/ Constructiedetail

Plat dak met buitenwand

.DWG (109.61 kB)
bouwdetail in .dwg
Tekening/ Constructiedetail

Fundering met buitenwand (langsgevel) na-isolatie binnen - nieuwe principe

.PDF (590.22 kB)
bouwdetail vroeg na-oorlogse woningen
Tekening/ Constructiedetail

Plat dak met zijwang (dakkapel)

.PDF (184.71 kB)
bouwdetail
Tekening/ Constructiedetail

Terrasdak met vacuümisolatie en afschot

.PDF (255.07 kB)
bouwdetail
Tekening/ Constructiedetail

Buitenwand met raamopening (onderaansluiting langsgevel)

.PDF (462.26 kB)
bouwdetail
Tekening/ Constructiedetail

Buitenwand met raamopening en verdiepingsvloer (bovenaansluiting langsgevel)

.PDF (488.08 kB)
bouwdetail
Tekening/ Constructiedetail

Buitenwand met raamopening (zijaansluiting langsgevel)

.PDF (346.75 kB)
bouwdetail
Tekening/ Constructiedetail

Buitenwand met woningscheidende wand

.PDF (302.4 kB)
bouwdetail
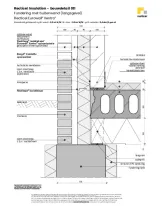
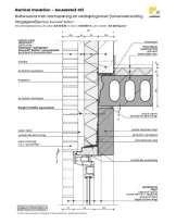
Tekening/ Constructiedetail

Fundering met buitenwand (langsgevel)

.PDF (700.45 kB)
bouwdetail

DoP-archief Archief van DoP-certificaten voor producten van Recticel Insulation